Sparkman & Associates Architects, Inc.
  • HOME
  • PURPOSE & HISTORY
  • COMMUNITY
  • PRESERVATION
  • HOUSING
  • INITIATIVES
  • SERVICES
  • AWARDS
  • CONTACT

Other projects

View
Current
View
View
View
View
View
View
Previous
Next
Back to portfolio

Next |Gen Housing Competition

empower house

SUMMARY

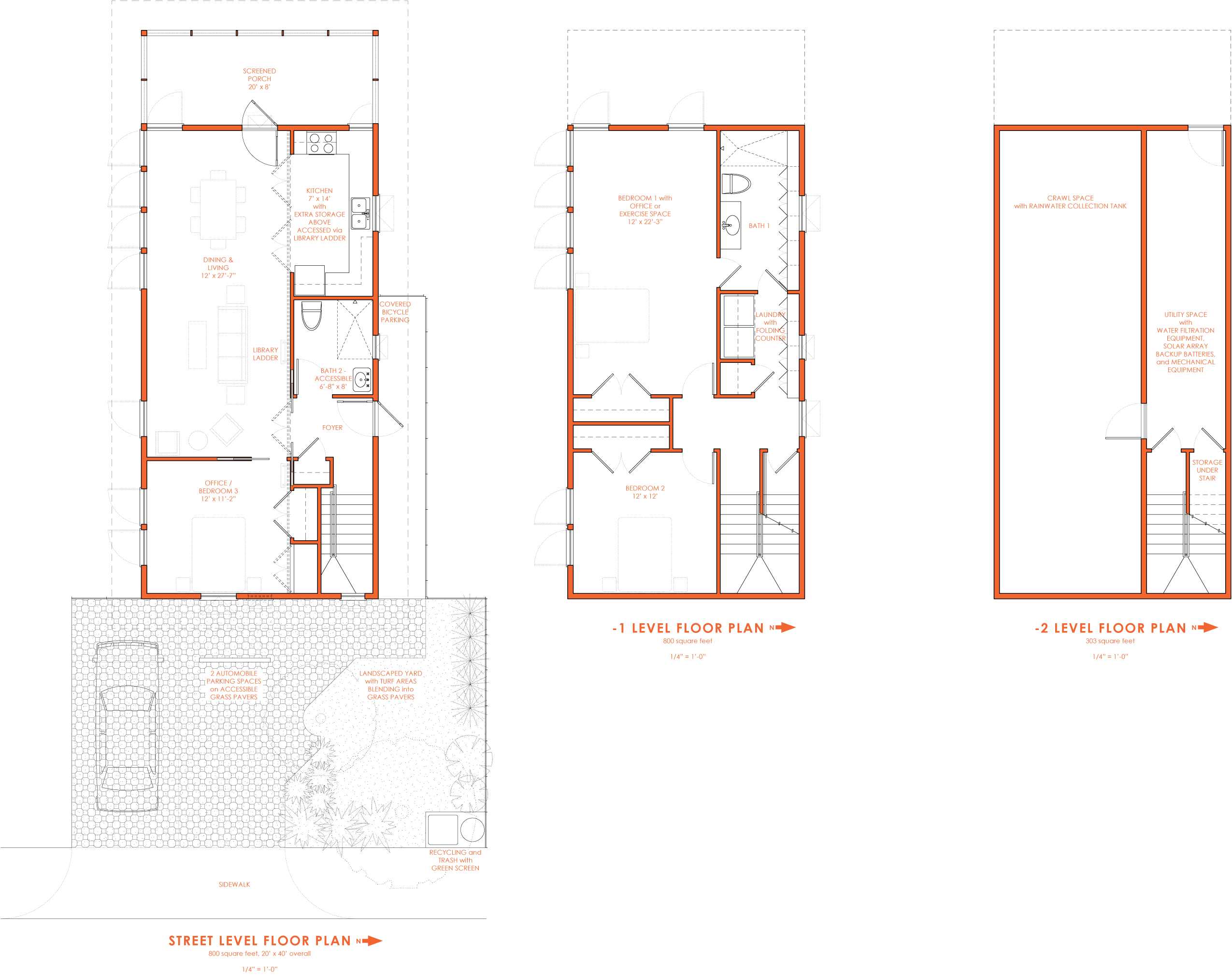
Today, much of the existing building stock and standard building practices leave families with burdens to babysit rather than assets for the future. Our approach to the idea of a “next generation” house is one of empowering people to live their best lives. We believe that this can largely be addressed by skillful design – buildings that are flexible, choreographed with the sun, breathe with the wind, are easily understood and maintained – and not with a gadgetry menagerie that is vulnerable to misunderstanding and malfunction. The more you know, the less you need.[i] We began by considering how much could be accomplished with the simplest of means – room arrangement and proportion, spatial sequence, amount of glazing, simple materials used thoughtfully – before considering architectural gymnastics, which proved unnecessary. Each design decision has been considered for both its aesthetics as well as its function, its use as a tool. The steep roof pitch is not only volumetrically engaging, it also enhances the stack vent effect. Countertops are recycled and refinished oak truck beds, which are inexpensive and expressive.We believe the potential of a “next generation” house includes buildings that are culturally rich, ecologically restorative, and socially just. This is empowering people, perhaps the noblest pursuit of architecture. [i] Yvon Chouinard, Patagonia

AREA

1,903 sq ft per unit; 7,612 sq ft total

ESTIMATED COST

Estimated $293,900 per unit; $1,175,600 total ($154 per square foot)

DESIGN TEAM

Architecture by Sparkman & Associates (Andrew Godwin, Susanne Tarovella, Frank Sparkman); MEP by Facility Systems Consultants; Renewable Energy by ARiES Energy

Awards

Merit Award, East Tennessee Chapter American Institute of Architects
© Sparkman & Associates Architects, Inc. 1977-2026. All rights reserved.
Use arrows for navigation